Pasaje Comercial Park View

1,880m2 rentables de área comercial distribuidos en la Planta Baja y Mezzanine.

Screenshot


PARK VIEW SANTA FE se encuentra ubicado en Av. Tamaulipas, conectando al corredor con las principales avenidas de Santa Fe como Supervía Poniente y Carretera Mex-Toluca. Es uno de los nuevos corporativos clase AAA de la zona, transformado y mejorando el urbanismo del área.

Su ubicación en el perímetro Sur del Parque La Mexicana, lo sitúa estratégicamente en uno de los espacios más privilegiados de Santa Fe, por sus accesos, amenidades cercanas y sus extraordinarias vistas.

Screenshot

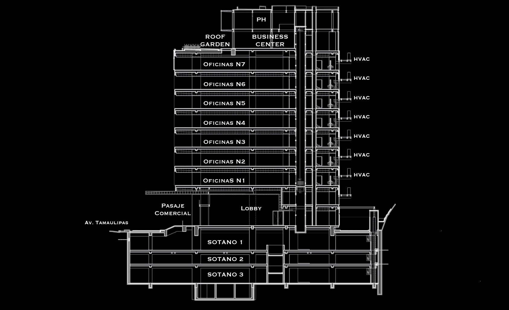
Datos del Proyecto

Generalidades

Con un total de 14,877m2 rentables, es un edificio de usos mixtos integrado por 11 niveles, los cuales están distribuidos de la siguiente manera:

· 317m2 rentables de dos oficinas ejecutivas en PH
· 560m2 de Business Center y 823m2 de Roof Garden con extraordinarias vistas al Parque La Mexicana.
· 12,118m2 rentables de Oficinas Corporativas en 7 niveles.
· 1,880m2 rentables de área comercial distribuidos en la Planta Baja y Mezzanine.
· 3 niveles de estacionamiento con 499 lugares.
· Precertificación LEED PLATINO Core and Shell.
· Altura de entre pisos de 4.50 metros de losa a losa.
· Área para bodegas en sótanos.

Ubicación estratégica

Lo más privilegiado de Santa Fe

Su ubicación en el perímetro Sur del Parque la Mexicana, lo sitúa estratégicamente en uno de los espacios mas privilegiados de Santa Fe, por su conectividad, referencia visual y equipamientos cercanos.

  • Image
  • Image
  • Image