Tu nueva oficina en Santa Fe

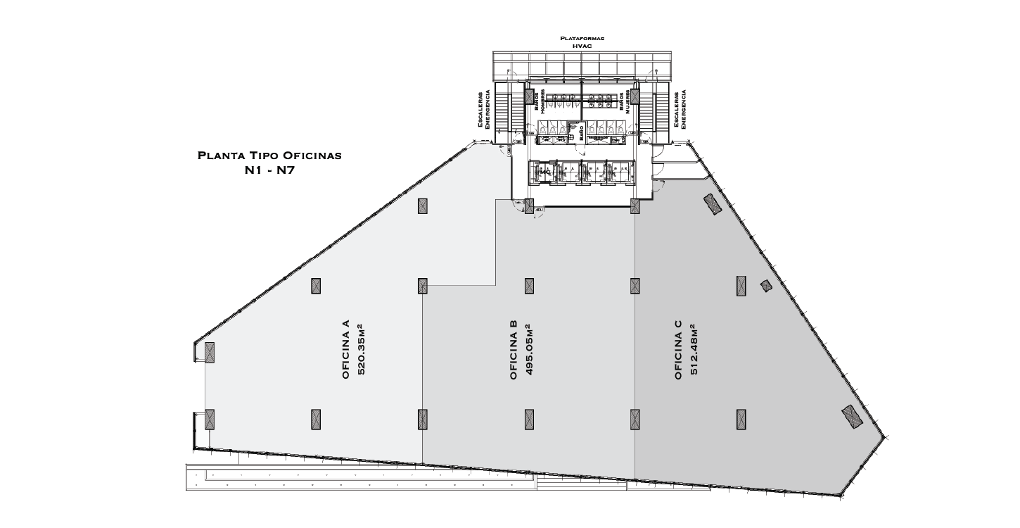
12,118m2 rentables de Oficinas Corporativas en 7 niveles

Screenshot




· CCTV – vigilancia en áreas comunes 24/7

· HVAC – sistema VFR (Sistema de Flujo de Refrigerante Variable), el cual permite que cada unidad interior se pueda ajustar a los requerimientos específicos de los inquilinos. Se puede suministrar enfriamiento o calefacción de manera independiente y simultánea en cada zona.

· Sistema eléctrico – se cuenta con dos subestaciones, la primera genera energía eléctrica para las áreas comunes (incluyendo estacionamiento) y la segunda está dirigida para suministrar energía a los pisos de oficinas (incluyendo el sistema HVAC).

· Proyecto hidrosanitario - cuenta con la certificación LEED, y ha sido diseñado para gestionar el agua potable, el agua pluvial y las aguas residuales de manera eficiente y responsable con el medio ambiente.

· Planta de tratamiento de agua y sistema de bombeo.

· Sistema contra incendios: detectores de humo y alarmas contra incendios.

· Extracción de aire y detección de CO2 en sótanos.

· Control de accesos a través de tarjetas de proximidad.

· 2 escaleras de emergencia.

· Planta de emergencia para áreas comunes.

ELEVADORES


Cuenta con un total de 8 elevadores de última generación, distribuidos de la siguiente manera:

· 4 elevadores para niveles de oficinas, business center y roof garden OTIS, modelo Gen2 Regen Cuádruplex con llamada anticipada, reduciendo el tiempo de espera y traslado hasta en un 50% de los sistemas convencionales. Uno de los elevadores para niveles de oficinas tiene la capacidad de operar tanto para pasajeros como para uso de montacargas.

· 3 elevadores de transferencia para sótanos marca ThyssenKrupp, modelo MC2 tríplex.

· 1 elevador panorámico de cristal para el área comercial.

Screenshot

Datos del Proyecto

Generalidades

Con un total de 14,877m2 rentables, es un edificio de usos mixtos integrado por 11 niveles, los cuales están distribuidos de la siguiente manera:

· 317m2 rentables de dos oficinas ejecutivas en PH
· 560m2 de Business Center y 823m2 de Roof Garden con extraordinarias vistas al Parque La Mexicana.
· 12,118m2 rentables de Oficinas Corporativas en 7 niveles.
· 1,880m2 rentables de área comercial distribuidos en la Planta Baja y Mezzanine.
· 3 niveles de estacionamiento con 499 lugares.
· Precertificación LEED PLATINO Core and Shell.
· Altura de entre pisos de 4.50 metros de losa a losa.
· Área para bodegas en sótanos.

Ubicación estratégica

Lo más privilegiado de Santa Fe

Su ubicación en el perímetro Sur del Parque la Mexicana, lo sitúa estratégicamente en uno de los espacios más privilegiados de Santa Fe, por su conectividad, referencia visual y equipamientos cercanos.

  • Image
  • Image
  • Image